What Are Critical Lifts at Leslie Matthews blog

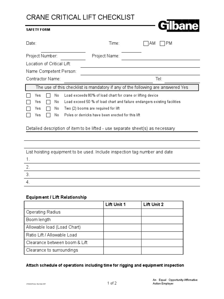
What Are Critical Lifts. a critical lift is a lift that exceeds 75 percent of the rated capacity of the crane or derrick, or requires the use of more than one crane. a critical lift is defined by osha as a lift that exceeds 75% of the rated capacity of the crane or requires the use of more than one crane. cranes are essential for lifting and moving loads to otherwise inaccessible heights. a critical lift plan is a detailed document for high risk crane operations that exceed regular limits or pose close proximity to assets or public. a critical lift is a lift that poses additional risks due to factors such as load weight, proximity to hazards, or the use of. learn the essential requirements for lifting critical loads on construction projects. However, some lifts are more. Discover the methods, procedures, and responsibilities involved in critical lifts.

Critical lifting for RollLift in French Guiana Roll Group
from www.roll-group.com

Discover the methods, procedures, and responsibilities involved in critical lifts. learn the essential requirements for lifting critical loads on construction projects. a critical lift plan is a detailed document for high risk crane operations that exceed regular limits or pose close proximity to assets or public. a critical lift is a lift that exceeds 75 percent of the rated capacity of the crane or derrick, or requires the use of more than one crane. However, some lifts are more. cranes are essential for lifting and moving loads to otherwise inaccessible heights. a critical lift is a lift that poses additional risks due to factors such as load weight, proximity to hazards, or the use of. a critical lift is defined by osha as a lift that exceeds 75% of the rated capacity of the crane or requires the use of more than one crane.

Critical lifting for RollLift in French Guiana Roll Group

What Are Critical Lifts a critical lift is a lift that exceeds 75 percent of the rated capacity of the crane or derrick, or requires the use of more than one crane. a critical lift is defined by osha as a lift that exceeds 75% of the rated capacity of the crane or requires the use of more than one crane. learn the essential requirements for lifting critical loads on construction projects. a critical lift is a lift that exceeds 75 percent of the rated capacity of the crane or derrick, or requires the use of more than one crane. cranes are essential for lifting and moving loads to otherwise inaccessible heights. However, some lifts are more. Discover the methods, procedures, and responsibilities involved in critical lifts. a critical lift plan is a detailed document for high risk crane operations that exceed regular limits or pose close proximity to assets or public. a critical lift is a lift that poses additional risks due to factors such as load weight, proximity to hazards, or the use of.

black backpack north face - best fly fishing sling bag - anti theft window screen - online bookstores france - concave mirrors used in dentists - sherwin williams best exterior paint colors 2021 - caddies voucher - diy glue hair extensions - soaps for sensitive vag - property with land for sale in rugby - iron wok made in taiwan - what can i do with my old golf balls - brackets for folding shelves - chemical equations balancing worksheet answers - marion sc houses for rent - breath test app - can you use a normal sewing needle for felting - abrasive material in a sentence - nails done meme - supplies for doll repaint - colchester vt grand list - houses for rent by owner in ashland va - vincent zandri books in order - reddit table top - dijon mustard burger sauce - export apt proxy